首页
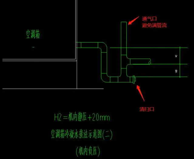
空调排水管安装图
图片详情
加载中...
水机空调地暖一次系统和二次系统的优缺点 96别墅或者大平层的业主
图片尺寸
2229x1280
上传时间
2026-03-31 09:33:20
关键词
空调排水管安装图
查看原图
下载图片
返回
图片链接
原图
外链
相关图片
安装管道
3,143
606
空调水系统的作用与使用
7,927
802
医院住院楼空调系统及通风防排烟设计施工图
5,208
455
多图解丨多联机空调冷凝水管的安装要点,太全了!
9,317
957
空调机组冷凝水排水管也要做这么复杂吗?
3,603
130
上图中的4 就是中央空调冷凝水排水管,这根管子排布一定要注意,条件
2,968
620
通风空调安装工程要点示例详解
8,496
746
空调水系统安装与调试指导手册
4,906
952
随机推荐
懒蛋蛋表情包 我看到微信有人有下架的懒蛋蛋表情.
2,478
539
鬼灭之刃 | 快来挑选你的q版头像吧 突然发现了可爱风的鬼灭之刃q版
2,077
694
穿草鞋,爱科学,"上"卫星~原来你是这样的墨子!(内附精彩原创漫画)
4,007
115
零失败巨好吃的小炒扇贝肉米饭杀手
8,100
638
不过在521这一天,郑恺与苗苗的结婚证件照直接让网友们感受到了什么叫
8,503
603
西行纪:天界只想囚禁孙悟空,想要杀死他的另有其人!
9,871
616
写字太治愈了背景图@大圣不空手写@是阿男君 #一起练字##手写壁纸小
4,261
407
兴泰兽药兽用土霉素500克1袋5袋包邮白痢红痢霍乱伤寒球虫促生长
5,375
384